住まいのことなら | ![]() |
![]() |
|
京都市上京区今小路通西入紙屋川町1038-24 電話:075-463-0766 ファックス:075-464-0766 e-mail:osita@mbox.kyoto-inet.or.jp |
![]() |
![]() |
![]() |
![]() |
![]() |
![]() |
![]() |
![]() |
![]() |
![]() |
![]() |
![]() |
![]() |
![]() |
![]() |
![]() |
![]() |
![]() |
![]() |
![]() |
![]() |
![]() |
![]() |
![]() |
![]() |
![]() |
![]() |
![]() |
![]() |
![]() |
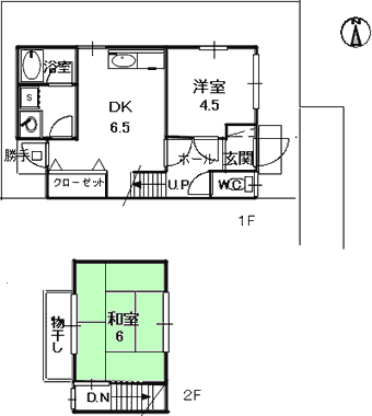
間取り |
地図 |
![]() |
|
物件
|
タイプ | 木造2階建て | 家賃 | 6万3千円 | 敷金 | 10万円 | 礼金 | 10万円 |
契約期間 | 3年(再契約料:旧家賃の1ヵ月分) | 管理費 | なし | |||||
住所 | 京都市右京区竜安寺五反田町 | |||||||
アクセス | 市バス竜安寺前 徒歩4分 | |||||||
建築年月日 | 1974年2月 | 構造 | 木造2階建て/瓦・亜鉛メッキ葺/連棟 | |||||
使用面積 | 1階31.46u、2階12.42u | 入居 | 即時 | |||||
備考 | 環境良好、美宅、ペット不可、TV地上波有り 残置物(エアコン3台・ウォシュレット・ガスコンロ) インターネットは借主対応、ガレージ近隣(普通10,000円/月) 退去時清掃代借主負担(77,000円) 解約違約金1年以内1ヶ月 火災保険加入要、保証会社加入要 |
→物件一覧に戻る | →お問い合わせ |