| 住まいのことなら創業70年老舗 | ![]() |
![]() |
|
京都市上京区今小路通西入紙屋川町1038-24 電話:075-463-0766 ファックス:075-464-0766 e-mail:osita@mbox.kyoto-inet.or.jp |
|
| トップ>賃貸(住居)>物件詳細 |
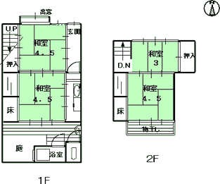
間取り |
地図 |
![]() |
![]() |
物件
|
タイプ | 事業用(倉庫) | 家賃 | 39,600円(税込み) | 敷金 | 2ヶ月 | ||
| 契約期間 | 3年(更新料:旧家賃の1ヵ月分) | 礼金 | 1ヶ月 | |||||
| 住所 | 京都市上京区五辻通千本東入西五辻東町 | |||||||
| アクセス | 市バス千本今出川 徒歩3分 | |||||||
| 建築年月日 | 不詳 | 構造 | 木造瓦葺2階建て | |||||
| 使用面積 | 1階23.57u、2階16.99u | 入居 | 相談 | |||||
| 備考 | 倉庫使用のみ。現状渡し、庭手入れは借主 火災保険加入要、保証会社加入要。 別途、手数料として家賃の1ヶ月分+消費税が要ります。 |
|||||||
賃貸 マンション アパート 倉庫 貸家 借家 町屋 ファミリー 京都市 上京区 交通便利
| →物件一覧に戻る | →お問い合わせ |